Villa Mys
New Villa | Åkersberga, Stockholms län
A magical skogstomt outside of Åkersberga provides the perfect backdrop to a new family home. Working with a challenging budget, we designed a smart, space-efficient “Ladhus +” which, through smart design, provides maximum functionality for minimum investment.
Entreplan
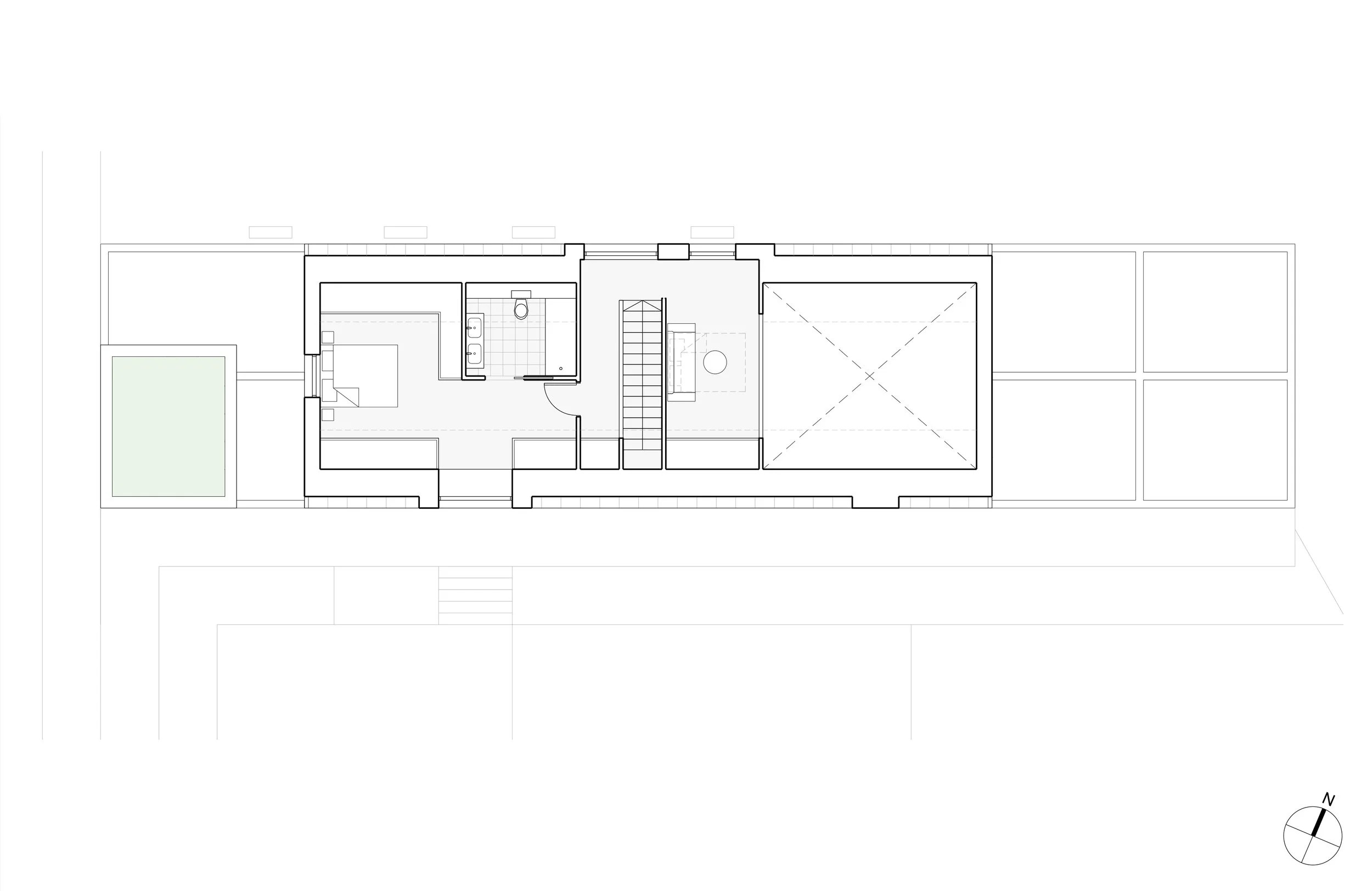
Övre plan
 
                         
                  
                    
                 
                  
                    
                 
                  
                    
                 
            
              
            
            
          
               
            
              
            
            
          
              